Google Reviews   4.8 / 5 59 reviews 
043 851 204 3

Beatrixlaan 43, Margraten

 
Verkocht
€425.000,-
k.k.
6269EX Margraten
  • Prijs€425.000,- k.k.
  • Woonoppervlakte140 m²
  • TypeVrijstaand
  • Slaapkamers3

Omschrijving

Aan de rustige en ruim opgezette Beatrixlaan in Margraten ligt deze vrijstaande woning op een royaal perceel, met een ruime garage, carport, meerdere bergingen en een verzorgde tuin rondom. De woning is netjes onderhouden en biedt een solide basis voor wie naar eigen smaak wil moderniseren. Dankzij de riante leefruimtes, drie slaapkamers en een zolder met mogelijkheid tot een vierde slaapkamer is dit een ideaal familiehuis op een geliefde locatie.

Begane grond:
De woning beschikt over een uitnodigende entree met toegang tot de kelder, de open trap naar de verdieping, de meterkast, het toilet, de woonkamer en de keuken.
De ruime woonkamer is prettig ingedeeld met meerdere zitmogelijkheden en grote raampartijen waardoor er veel natuurlijk licht binnenvalt. Vanuit de woonkamer is er vrij zicht op alsook door middel van de openslaande tuindeuren toegang tot de tuin.

De gesloten keuken is separaat gelegen en biedt voldoende ruimte voor een moderne keukenindeling. Aangrenzend bevindt zich de praktische bijkeuken met eveneens toegang tot de achtertuin.

Eerste verdieping:
Via de overloop bereikt u de drie slaapkamers, welke alledrie van fatsoenlijk formaat zijn alsmede de badkamer met ligbad, wastafel, tweede toilet en witgoedaansluiting.

Tweede verdieping:
Via vlizotrap bereikbare zolderverdieping. Deze verdieping fungeert momenteel als bergzolder, maar biedt volop mogelijkheden om een vierde volwaardige slaapkamer te realiseren.

Kelder:
De kelder is verrassend ruim en bestaat uit meerdere ruimtes waardoor deze ideaal is voor opslag, provisie of hobby’s.

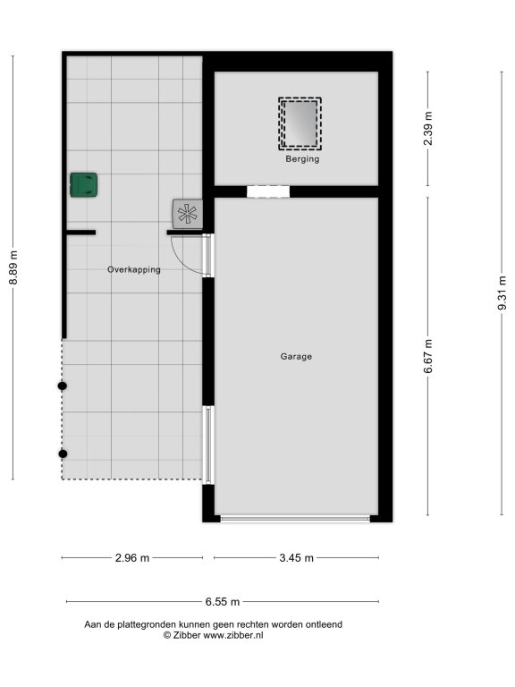
Garage, bergingen en tuin:
Achter op het perceel staat een ruime vrijstaande garage, aangevuld met een extra berging en een overkapping. Perfect voor stalling, opslag of het uitoefenen van hobby’s.

De tuin rondom de woning is verzorgd aangelegd en biedt een fijne combinatie van terrassen, gazon, paden en borders. Dankzij de grootte van het perceel zijn er altijd plekken in de zon én schaduw te vinden.

Aanvullende informatie:
- Bouwjaar 1972
- Energielabel E
- Deels v.v. isolerende beglazing in hardhouten ramen en deuren
- CV-installatie; eigendom, bouwjaar 2013
- Ruime garage, bergingen en tuin
- Rustige ligging in een groene en kindvriendelijke omgeving

Bent u op zoek naar een woning met ruimte voor eigen inbreng, rust én flink wat mogelijkheden? Maak dan snel een afspraak voor een bezichtiging en ervaar zelf de fijne sfeer van de Beatrixlaan 43 in Margraten.

Deze informatie is met zorg samengesteld. Desondanks kunnen er geen rechten aan worden ontleend. Alle opgegeven maten zijn indicatief. Deze aanbieding geldt uitsluitend als uitnodiging tot bezichtiging.

Lees meer
Contact
Kantoor Rob Prevoo

Julianalaan 8
6269CN Margraten

  043 851 204 3
  info@robprevoo.nl

Specificates
Afmetingen
  • Woonoppervlakte 140m²
  • Perceeloppervlakte 435m²
  • Inhoud 652m³
Algemeen
  • Huisdieren gewenst N.v.t.
Bouw
  • Soort Woningen
  • Type Vrijstaand
  • Bouwjaar 1972
Energie
  • Energielabel E
Indeling
  • Kamers 5
  • Slaapkamers 3
  • Garage Ja, 23m²
  • Kelder Ja, 21m²
  • Tuin Ja
  • Tuin ligging Z
  • Balkon Nee
  • Dakterras Nee
Voorziening
  • Parkeerplaats Ja
  • Lift Nee
  • Airco Nee
  • Openhaard Ja
  • Zwembad Nee
Lees meer
Klik hier om de kaart te bekijken

Afbeeldingen

Bekijk objectvideo

Vraag bezichtiging aan

Veld niet correct
Veld niet correct
Veld niet correct
Veld niet correct

Brochure aanvragen

Veld niet correct
Veld niet correct
Veld niet correct
Veld niet correct
Veld niet correct
Veld niet correct
Veld niet correct