Google Reviews   4.8 / 5 59 reviews 
043 851 204 3

Dorpsstraat 108, Eckelrade

 
Verkocht
€349.000,-
k.k.
6252 NE Eckelrade
  • Prijs€349.000,- k.k.
  • Woonoppervlakte102 m²
  • TypeVrijstaand
  • Slaapkamers3

Omschrijving

In het hart van het charmante dorp Eckelrade bieden wij deze te moderniseren maar karaktervolle vrijstaande splitlevel woning met royale woonkamer, drie slaapkamers, garage en zonnige tuin op ruim bemeten perceel aan. Gelegen op een rustige en gewilde locatie, combineert deze woning een warme, huiselijke sfeer met veel praktische leefruimte en een heerlijke tuin. Perfect voor wie comfortabel wil wonen in een landelijke omgeving.

Begane grond:
Via de overdekte entree betreedt u de hal met toegang tot het toilet en de meterkast. De fraaie en sfeervolle woonkamer is royaal van opzet en wordt gekenmerkt door het niveauverschil ten opzichte van keukengedeelte en hoge plafond en kent door de grote raampartijen veel natuurlijk licht en een prachtig uitzicht op de tuin. De trap naar de open vide en de haard vervullen daarnaast een promente rol in de sfeer van deze ruimte. 

De halfopen keuken bevindt zich aan de voorzijde en is praktisch ingericht met voldoende ruimte voor werk- en kastruimte. Aansluitend is er een eetgedeelte waar u gezellig kunt tafelen.

Verder vindt u op de begane grond een badkamer met ligbad, douche en wastafel, en een tussenhal die directe toegang biedt tot de praktische kelder en de ruime garage. Ideaal voor hobby’s, opslag of het stallen van de auto. 

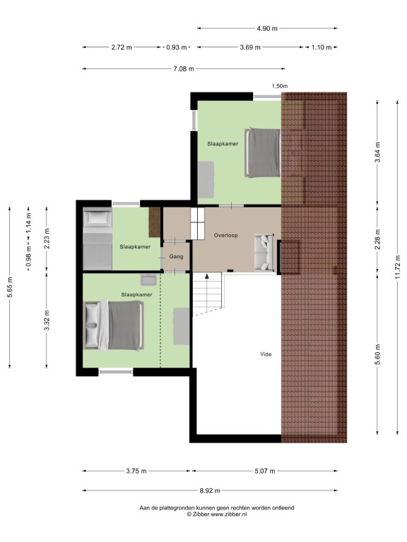
Eerste verdieping:
Via de open vide die uitkijkt op de woonkamer zijn de drie slaapkamers te bereiken waarvan er twee voldoende ruimte bieden voor het plaatsen van een tweepersoons bed.  

Buitenruimte:
De woning beschikt over een zonnige tuin rondom, met volop mogelijkheden om te genieten van het buitenleven. Of u nu wilt ontspannen op een terras, tuinieren of spelen met kinderen — hier kan het allemaal. De ligging aan een rustige straat versterkt het gevoel van privacy en vrijheid.

Ligging:
Eckelrade is een sfeervol en rustig dorp in Zuid-Limburg, omgeven door glooiende heuvels en prachtige natuur. Daarnaast ligt Maastricht op korte rijafstand, wat deze locatie perfect maakt voor wie rustig wil wonen met de stad dichtbij.

Aanvullende informatie:
-bouwjaar 1973
-energielabel: F
-royaal perceel van 613 m2
-modernisatie noodzakelijk
-cv-ketel (eigendom) 
-oprit voor het parkeren van meerdere voertuigen

Lees meer
Contact
Kantoor Rob Prevoo

Julianalaan 8
6269CN Margraten

  043 851 204 3
  info@robprevoo.nl

Specificates
Afmetingen
  • Woonoppervlakte 102m²
  • Perceeloppervlakte 613m²
  • Inhoud 550m³
Algemeen
  • Huisdieren gewenst N.v.t.
Bouw
  • Soort Woningen
  • Type Vrijstaand
  • Bouwjaar 1973
Indeling
  • Kamers 5
  • Slaapkamers 3
  • Garage Nee
  • Kelder Nee
  • Tuin Ja
  • Tuin ligging Z
  • Balkon Nee
  • Dakterras Nee
Voorziening
  • Parkeerplaats Ja
  • Lift Nee
  • Airco Nee
  • Openhaard Ja
  • Zwembad Nee
Lees meer
Klik hier om de kaart te bekijken

Afbeeldingen

Bekijk objectvideo

Vraag bezichtiging aan

Veld niet correct
Veld niet correct
Veld niet correct
Veld niet correct

Brochure aanvragen

Veld niet correct
Veld niet correct
Veld niet correct
Veld niet correct
Veld niet correct
Veld niet correct
Veld niet correct