Google Reviews   4.8 / 5 59 reviews 
043 851 204 3

de Haymestraat 24, Margraten

 
Verkocht
€275.000,-
k.k.
6269CS Margraten
  • Prijs€275.000,- k.k.
  • Woonoppervlakte88 m²
  • Type2-onder-1-kap
  • Slaapkamers3

Omschrijving

In een rustige en prettige woonomgeving in het geliefde Margraten ligt deze halfvrijstaande woning. Een fijne en overzichtelijke woning die in de jaren ’90 op diverse onderdelen is vernieuwd en daarmee een uitstekende basis vormt voor starters die hun eigen woonwensen willen realiseren.

De woning beschikt over drie slaapkamers, een ruime badkamer en een absolute plus: een zeer royale garage van meer dan 40 m². Ideaal voor hobbyisten, klussers of wie gewoon veel bergruimte nodig heeft.

Indeling

Begane grond:
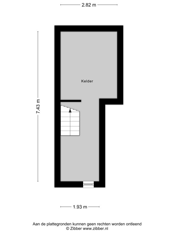
Via de entree bereik je de hal met toiletruimte, meterkast, trapopgang en toegang tot de praktische kelder, ideaal voor provisie of extra opslag. De lichte woonkamer met schouwpartij staat in verbinding met de tuin en keuken, welke voorzien is van een rechte opstelling met de nodige apparatuur. Vanuit de woonkamer alsook de garage annex bijkeuken is er toegang tot de knusse achtertuin.

Eerste verdieping:
Op de eerste verdieping bevinden zich drie slaapkamers en een opvallend ruime badkamer, voorzien van een ligbad, douche, tweede toilet en wastafel. Een comfortabele en complete badkamer waar functionaliteit voorop staat. De voormalige badkamer dient thans als bergruimte en zou prima dienst kunnen doen als wasruimte. 

Zolder:
Middels een vlizotrap is de zolder bereikbaar, perfect te gebruiken als extra bergruimte.

Buitenruimte:
De achtertuin is knus en momenteel grotendeels verhard, wat zorgt voor weinig onderhoud en volop mogelijkheden om deze naar eigen smaak in te richten.

Pluspunten op een rij:
- Rustig gelegen halfvrijstaande woning
- Kunststof kozijnen
- CV-ketel; HR, bouwjaar 2024, gehuurd
- Drie slaapkamers
- Ruime badkamer met ligbad, douche en tweede toilet
- Oprit voor meerdere voertuigen
- Praktische kelder en zolder
- Zeer grote garage van >40 m²
- Geheel omsloten achtertuin
- Ideale starterswoning met ruimte voor eigen inbreng

Een hartstikke fijne woning op een rustige locatie, met veel potentie en praktische ruimtes. Ben je op zoek naar een betaalbare woning waarin je stap voor stap je eigen woonideeën kunt verwezenlijken? Dan is De Haymestraat 24 in Margraten absoluut een bezichtiging waard.

Deze informatie is met zorg samengesteld. Desondanks kunnen er geen rechten aan worden ontleend. Alle opgegeven maten zijn indicatief. Deze aanbieding geldt uitsluitend als uitnodiging tot bezichtiging.

Lees meer
Contact
Kantoor Rob Prevoo

Julianalaan 8
6269CN Margraten

  043 851 204 3
  info@robprevoo.nl

Specificates
Afmetingen
  • Woonoppervlakte 88m²
  • Perceeloppervlakte 215m²
  • Inhoud 567m³
Algemeen
  • Huisdieren gewenst N.v.t.
Bouw
  • Soort Woningen
  • Type 2-onder-1-kap
  • Bouwjaar 1960
Energie
  • Energielabel E
Indeling
  • Kamers 5
  • Slaapkamers 3
  • Garage Ja, 40m²
  • Kelder Ja, 17m²
  • Tuin Ja
  • Tuin ligging N
  • Balkon Nee
  • Dakterras Nee
Voorziening
  • Parkeerplaats Ja
  • Lift Nee
  • Airco Nee
  • Openhaard Nee
  • Zwembad Nee
Lees meer
Klik hier om de kaart te bekijken

Afbeeldingen

Bekijk objectvideo

Vraag bezichtiging aan

Veld niet correct
Veld niet correct
Veld niet correct
Veld niet correct

Brochure aanvragen

Veld niet correct
Veld niet correct
Veld niet correct
Veld niet correct
Veld niet correct
Veld niet correct
Veld niet correct