Google Reviews   4.8 / 5 60 reviews 
043 851 204 3

Daalstraat 1 K, Geleen

 
Verhuurd
€1.145,-
p/mnd
6165TH Geleen

Royaal appartement met privé garage

  • Prijs€1.145,- p/mnd
  • Woonoppervlakte80 m²
  • TypeMaisonnette
  • Slaapkamers2

Omschrijving

Op de eerste verdieping van een kleinschalig en goed onderhouden complex gelegen royale maisonnette met twee slaapkamers en garage op afgesloten achterterrein en zonnepanelen installatie. Prima gelegen t.o.v. zowel centrum Geleen als verbindingswegen. 

Parterre:
Centrale hal met intercominstallatie, brievenbussen, lift en trappenhuis, afgesloten achterterrein eigen garagebox.

Eerste verdieping:
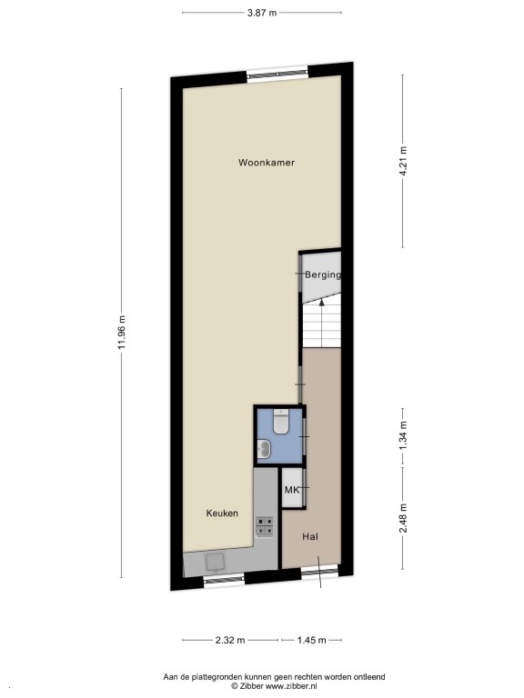
Galerij, entreehal met meterkast, garderobe, volledig betegelde toiletruimte met fontein, trapopgang, woonkamer met bergkast onder de trap, open keuken met keurige L-vormige aanbouwcombinatie voorzien van keramische kookplaat, afzuigkap, oven en koelkast.

Tweede verdieping:
Overloop met cv-ruimte, een slaapkamer met twee grote dakramen, volledig betegelde badkamer met ligbad, wastafel en 2e toilet alwaar tevens een aansluitpunt voor wasmachine aanwezig is en een tweede slaapkamer met toegang naar balkon.

Aanvullende informatie:
- beschikbaar per 1 maart 2026
- instapklaar appartement
- lift aanwezig
- v.v. zonnepaneleninstallatie (6 stuks)
- huurprijs excl. GWE
- huurprijs excl. € 50,- servicekosten
- max. bewoning door twee personen
- geen huisdieren toegestaan
- waarborgsom € 1.717,50
- voorbehoud: goedkeuring eigenaren

Lees meer
Contact
Kantoor Rob Prevoo

Julianalaan 8
6269CN Margraten

  043 851 204 3
  info@robprevoo.nl

Specificates
Afmetingen
  • Woonoppervlakte 80m²
  • Balkon oppervlakte 6m²
Algemeen
  • Huisdieren gewenst Nee
Bouw
  • Soort Woningen
  • Type Maisonnette
  • Bouwjaar 1997
Energie
  • Energielabel B
Indeling
  • Kamers 4
  • Slaapkamers 2
  • Garage Ja, 16m²
  • Kelder Nee
  • Tuin Nee
  • Balkon Ja
  • Balkon ligging No
  • Dakterras Nee
Voorziening
  • Parkeerplaats Nee
  • Lift Ja
  • Airco Nee
  • Openhaard Nee
  • Zwembad Nee
Lees meer
Klik hier om de kaart te bekijken

Afbeeldingen

Vraag bezichtiging aan

Veld niet correct
Veld niet correct
Veld niet correct
Veld niet correct

Brochure aanvragen

Veld niet correct
Veld niet correct
Veld niet correct
Veld niet correct
Veld niet correct
Veld niet correct
Veld niet correct